Home
25 Portal Street, Oxley
19 Priority Street, Tingalpa
48 Cedar Road, Palm Cove
161 Dornoch Tce, Highgate Hill
Technical Edge
Future Project Ideas
About Me
Home
25 Portal Street, Oxley
19 Priority Street, Tingalpa
48 Cedar Road, Palm Cove
161 Dornoch Tce, Highgate Hill
Technical Edge
Future Project Ideas
About Me
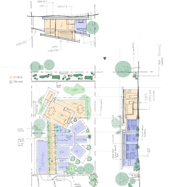
48 Cedar Road, Palm Cove
Conceptual Design
Development Application (DA) Documentation
Every great design starts with a question.
Create designs that impress
info@izitdesigns.com
© 2025. All rights reserved.