Home
25 Portal Street, Oxley
19 Priority Street, Tingalpa
48 Cedar Road, Palm Cove
161 Dornoch Tce, Highgate Hill
Technical Edge
Future Project Ideas
About Me
Home
25 Portal Street, Oxley
19 Priority Street, Tingalpa
48 Cedar Road, Palm Cove
161 Dornoch Tce, Highgate Hill
Technical Edge
Future Project Ideas
About Me
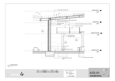
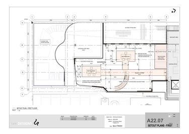
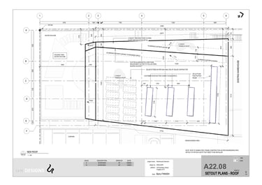
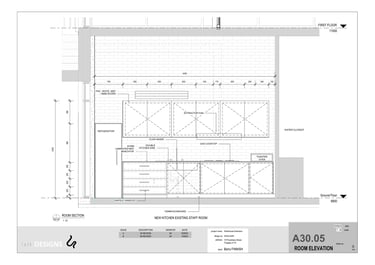
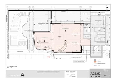
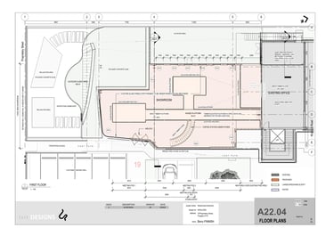
19 Proprietary Street, Tingalpa
Construction Documentation & Detailing
Every great design starts with a question.
Create designs that impress
info@izitdesigns.com
© 2025. All rights reserved.